Startseite / Projekte / Strandweg 13

Strandweg 13

Statische Modellierung für Küstenbauprojekt

Statische Projekte 2022

Projektübersicht

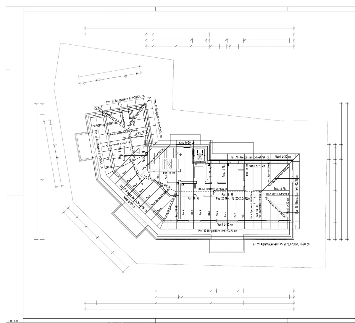
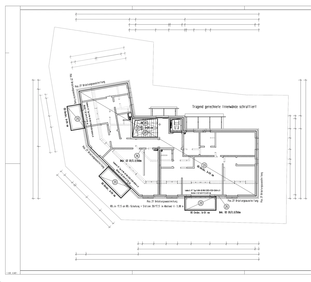
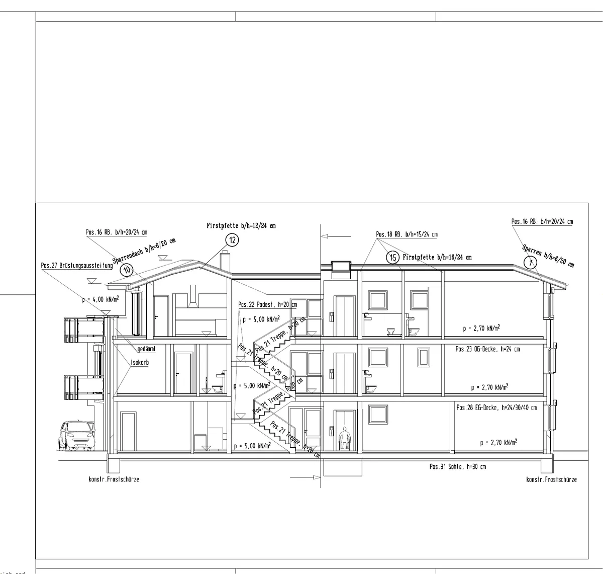
Das Projekt Strandweg 13 umfasst die statische Modellierung eines Gebäudes in exponierter Küstenlage. Besondere Herausforderungen waren die Berücksichtigung von Windlasten und die Stabilität des Fundaments im sandigen Untergrund. Die statischen Berechnungen gewährleisten eine langfristige Standsicherheit der Konstruktion.

Projektdetails

Projektgalerie