Startseite / Projekte / Statik Proje Modelleme

Statik Proje Modelleme

Präzise statische Analysen für komplexe Strukturen

Statische Projekte 2023

Projektübersicht

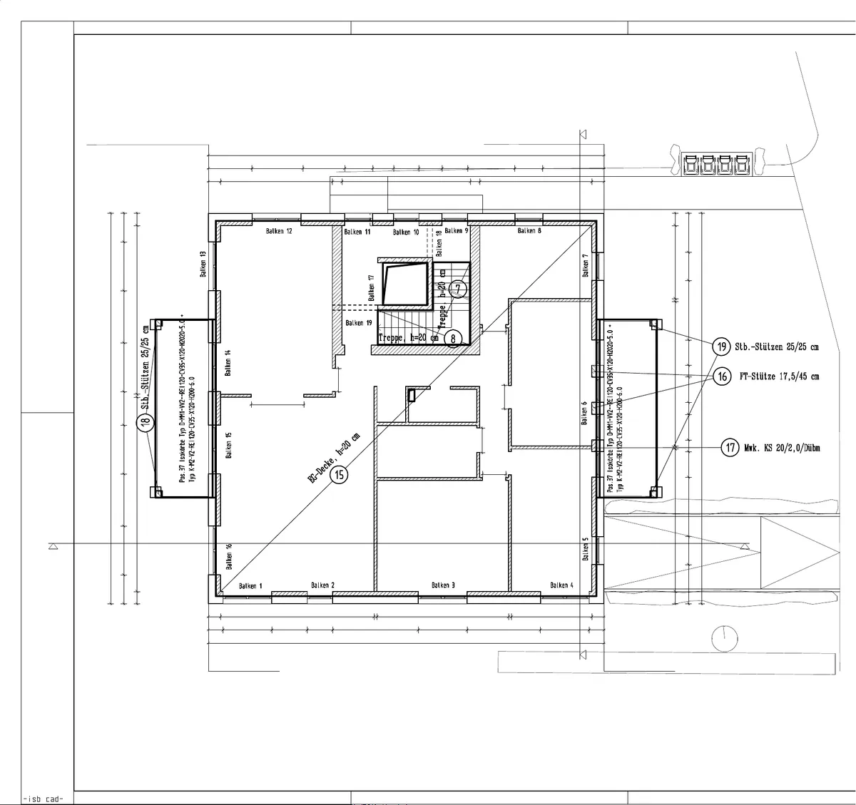
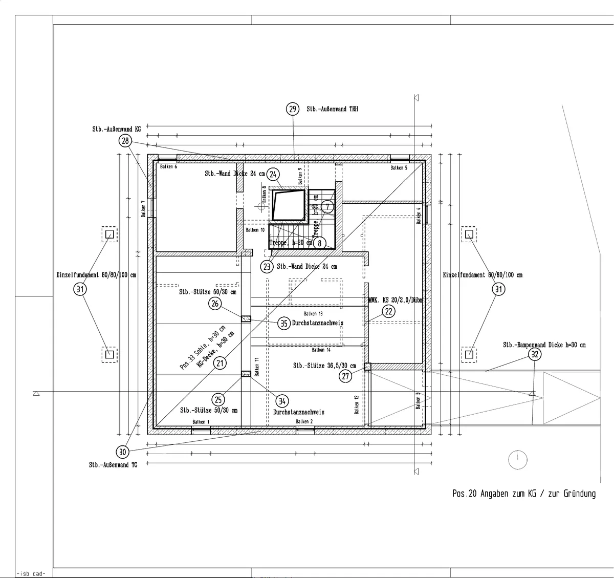
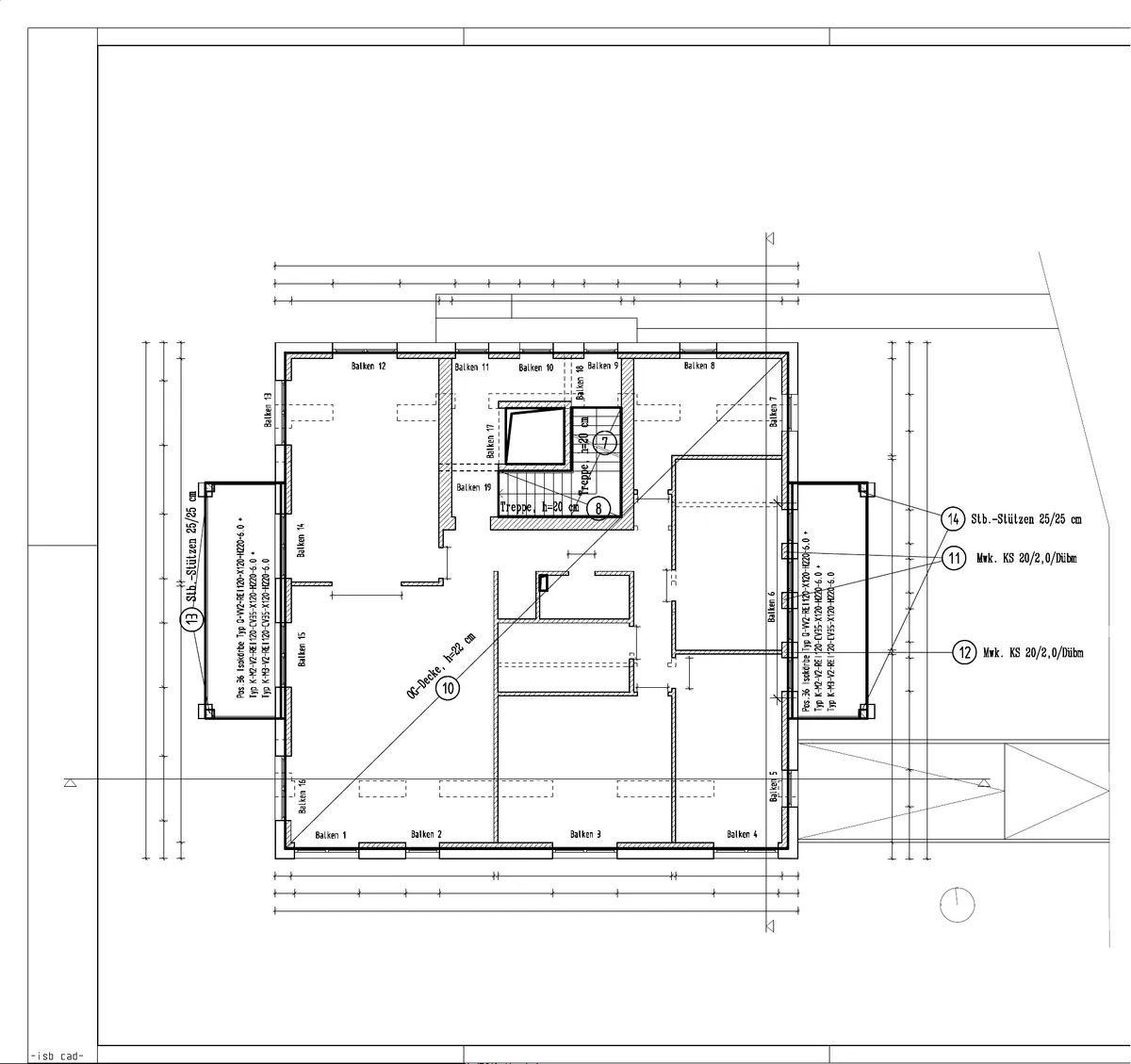
Das Projekt Statik Proje Modelleme zeigt die Anwendung spezialisierter Analyseverfahren für komplexe Strukturen. Die detaillierten statischen Berechnungen ermöglichen eine sichere und wirtschaftliche Auslegung der Tragkonstruktion unter Berücksichtigung verschiedener Lastfälle.

Projektdetails

Projektgalerie